Imagine 53

Teren Duplex/Casa individuala cu autorizatie, in Popesti

ID: P3546 Popesti, Central 3
183,10€ + TVA/mp
Suprafata teren
355 mp
Front stradal
20 m
Descriere
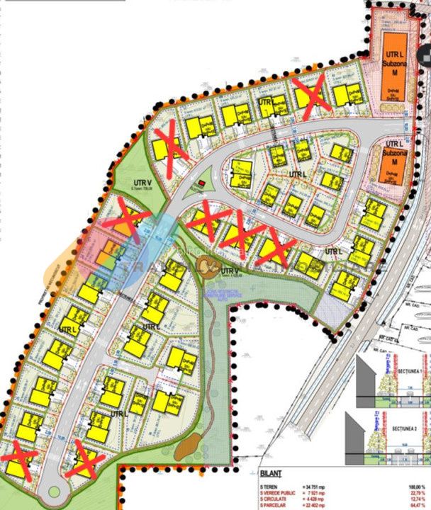
Vă propunem spre vânzare terenuri destinate construcției de unități duplex și case individuale, situate la intrarea în Popești, într-un viitor ansamblu rezidențial.
Detalii teren:
Suprafață totală: 34.700 mp
PUZ aprobat și parcelare realizată
Parcelele disponibile:
De la 281 mp utili pentru case individuale
Minimum 500 mp pentru duplexuri
Ansamblul rezidențial va cuprinde:
68 de unități locative, dintre care:
60 de duplexuri
8 case individuale
Avantaje:
Asistență pentru autorizarea parcelelor
Zonă în plină dezvoltare, cu potențial ridicat de investiție
Acces facil și infrastructură în curs de amenajare

Pentru detalii suplimentare și vizionări, vă stăm la dispoziție!
Id extern: P3546
Caracteristici
  • ID:P3546
  • S. teren:355.00 mp
  • Front stradal:20.00 m
  • Clasificare teren:Intravilan
  • Regim inaltime:D+P+1
Specificatii
Curent
Apa
Canalizare
Gaz
Localizare
Eduard Transilvania-Imobiliare
Manager
Esti interesat de aceasta proprietate ?
Proprietati similare
Rep. exclusiva Imagine 18521
Teren 1000 mp Iris, front 50 ml, cu utilități
Cluj-Napoca, Iris 64.990€
967mp
0% comision Exclusivitate Imagine 18230
Teren intravilan 2 parcele construibile de 700 mp , zona Baciu
Baciu, Fara zona 59.900€
700mp
0% comision Imagine 17812
Teren intravilan 500mp
Chinteni, Central 56.000€ 60.000€
500mp
0% comision Rep. exclusiva Imagine 17684
Teren Intravilan 561mp constribil in Chinteni
Chinteni, Ultracentral 69.990€
561mp
Exclusivitate Imagine 15994
Terenuri cu autorizatie de Duplex, in Chinteni
Chinteni 60.000€
500mp
Imagine 15794
Teren intravilan 741mp - Chinteni
Chinteni 74.100€
741mp