Imagine 53

Casă individuală de vânzare la intrarea în Chinteni – 117,7 mp utili, teren 472

ID: P3482 Chinteni 2
249.900€ 255.000€
Camere
4
Suprafata utila
118 mp
Bai
3
Descriere
Vă prezentăm spre vânzare o casă individuală situată într-o zonă aerisită și liniștită, chiar la intrarea în Chinteni, cu acces facil și priveliște panoramică asupra împrejurimilor.
Construcția a fost finalizată la sfârșitul anului 2024, fiind edificată pe un teren cu suprafață totală de 472 mp. Imobilul este ideal atât pentru locuire permanentă, cât și ca investiție pe termen lung, într-o comunitate în dezvoltare.
Detalii tehnice și structurale:
Construită din cărămidă eficientă energetic
Termosistem de 15 cm, cu tencuială decorativă siliconată, rezistentă la intemperii
Tâmplărie PVC Salamander cu geam tripan (3 foi de sticlă)
Încălzire în pardoseală pe ambele niveluri, prin centrală termică pe gaz
Racordată la toate utilitățile: apă, canalizare, gaz, curent
Acces asfaltat până la proprietate (stradă și trotuar)
Stadiul actual – semifinisat:
Pereți tencuiți și gletuiți (2 straturi)
Șapă turnată
Instalații electrice și sanitare trase pe poziții
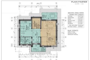
Compartimentare eficientă:
Parter – 62,2 mp utili
Living: 27,7 mp
Bucătărie: 8,7 mp
Hol: 6,4 mp
Casa scării: 3,2 mp
Baie: 3,2 mp
Debara: 2,4 mp
Terasă neacoperită: 8,5 mp
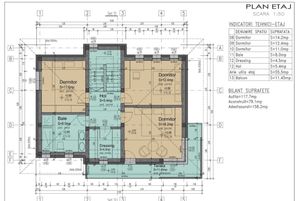
Etaj – 55,5 mp utili
Dormitor 1: 14,2 mp
Dormitor 2: 12,4 mp
Dormitor 3: 11,0 mp
Baie: 3,2 mp
Dressing: 3,2 mp
Hol: 2,4 mp
Balcon: 11,45 mp
Suprafațe totale:
Suprafață construită la sol (Sc): 79,1 mp
Suprafață desfășurată (Sd): 158,2 mp
Suprafață utilă totală (Su): 117,7 mp


📞 Pentru detalii suplimentare sau programarea unei vizionări, nu ezitați să ne contactați!
ID EXTERN: P3482
Caracteristici
  • ID:P3482
  • Nr. camere:4
  • Nr. dormitoare:3
  • S. utila:118.00 mp
  • S. teren:450.00 mp
  • Nr. bucatarii:1
  • Nr. bai:3
  • Nr. balcoane:2
  • Nr. parcari:2
Specificatii
Curent
Apa
Canalizare
Gaz
Centrala proprie
Localizare
Eduard Transilvania-Imobiliare
Manager
Esti interesat de aceasta proprietate ?
Proprietati similare
TOP 0% comision Rep. exclusiva Imagine 14990
Casă Cuplată 120 Mp cu View Deosebit în Dezmir
Dezmir 218.000€ 219.000€
4 camere 3 bai 120mp
TOP Rep. exclusiva Imagine 9650
Casă Individuală Moderna si Spațioasă în Chinteni
Chinteni, Central 279.990€
4 camere 3 bai 215mp
Imagine 18200
Casa Individualala la intrare in Chinteni suprafata utila 253 mp si teren 474 mp
Chinteni, Sud 259.990€
5 camere 3 bai 253mp
0% comision Imagine 17494
Casă individuala P+E+Pod, 225 mp, Chinteni
Chinteni, Central 250.000€ + TVA 265.000€ + TVA
4 camere 2 bai 225mp
0% comision Imagine 17381
Duplex, terasa, 2 balcoane, Floresti
Floresti, Terra 259.999€
4 camere 2 bai 109mp
0% comision Imagine 17344
Casa individuala 4 camere, teren 350 mp-Dezmir
Dezmir 249.000€
4 camere 3 bai 110mp