Vă prezentăm un penthouse spectaculos, situat în cartierul exclusivist Bună Ziua, o proprietate unică pe piața imobiliară din Cluj-Napoca, care redefinește conceptul de eleganță, confort și rafinament urban.
Cu o suprafață utilă impresionantă de 206 mp, desfășurată pe două niveluri, acest apartament ocupă întregul etaj superior al imobilului (etaj 6), oferind intimitate totală și vedere panoramică spre zona Sophia și împrejurimile verzi ale cartierului.
Proprietatea este complet ultrafinisată, fiecare detaliu fiind atent gândit pentru un stil de viață modern și rafinat.
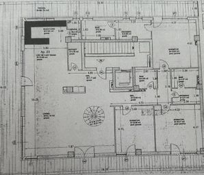
Compartimentare – Nivelul 1 (170 mp)
Living generos de 70 mp, cu zonă de dining și bucătărie open-space complet echipată
Două dormitoare matrimoniale, fiecare cu dressing propriu
Un al treilea dormitor luminos, fără dressing, ideal ca birou sau cameră de oaspeți
Două băi elegante, amenajate cu finisaje premium
Spălătorie separată și cameră tehnică
Dressing dedicat pentru pantofi
Cămară spațioasă
Terasă pe trei laturi (80 mp), perfectă pentru relaxare, mese în aer liber sau jacuzzi
Nivelul 2 – Zona Privată
Accesul se face printr-o scară interioară modernă, unde se află o zonă de bibliotecă rafinată, o baie suplimentară și o terasă spectaculoasă de 160 mp, cu o priveliște panoramică de neegalat asupra orașului.
Facilități și dotări:
Două garaje individuale în proprietate
Finisaje de cea mai înaltă calitate, instalații și mobilier complet noi
Sistem de climatizare modern
Încălzire în pardoseală și centrală termică proprie
Compartimentare inteligentă, perfect echilibrată între spații deschise și zone private
Acest penthouse este o proprietate unicat, ideală pentru cei care caută exclusivitate, confort absolut și un design contemporan, într-una dintre cele mai apreciate zone ale Clujului.
📞 Pentru mai multe detalii și programarea unei vizionări private, contactați-ne!
ID Extern: P2265

PENTHOUSE DE LUX CU TERASĂ PANORAMICĂ ȘI DOUĂ LOCURI DE PARCARE – BUNĂ ZIUA
ID: P2265 Cluj-Napoca, Buna-Ziua
4
760.000€
Camere
5
Suprafata utila
206 mp
Etaj
Etaj 6
Bai
3
Descriere
Caracteristici
- ID:P2265
- Nr. camere:5
- Nr. dormitoare:3
- S. utila:206.00 mp
- Comp.:Semidecomandat
- Etaj:Etaj 6
- Nr. bucatarii:1
- Nr. bai:3
- Tip imobil:Bloc
- Regim inaltime:P+6
Specificatii
Curent
Apa
Canalizare
Gaz
Incalzire pardoseala
Aer conditionat
Izolatie Exterior
Izolatie Interior
Bloc izolat termic
Terasa
Dressing
Bucatarie Mobilata
Complet mobilat
Interfon
Lift
Localizare
Esti interesat de aceasta proprietate ?