Imagine 53

4 camere, 123 mp utili + 21 mp terasă + 4 balcoane | Zona Mănăștur

ID: P2628 Cluj-Napoca, Manastur 98
304.000€ + TVA
Camere
4
Suprafata utila
123 mp
Etaj
Etaj 1
Bai
2
Descriere
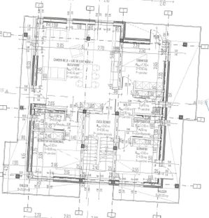
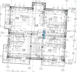
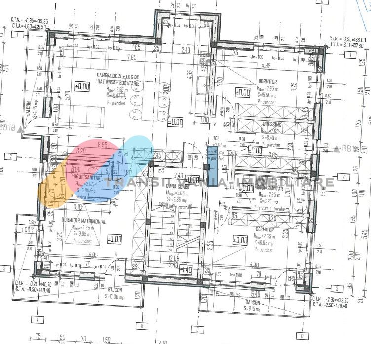
Îți prezentăm un apartament rar întâlnit pe piață, parte dintr-un proiect boutique – Proiectul Salviei, compus din două blocuri identice, cu regim de înălțime D+P+2, amplasate într-o zonă liniștită, exclusiv de case, în Mănăștur.
Apartamentul este situat într-un imobil cochet, cu un singur apartament pe nivel, și se predă în stadiu de semifinisat, ideal pentru personalizare după gustul tău.
Caracteristici principale:
Suprafață utilă: 123 mp
Terasă: 21 mp
Balcoane: 4 (pentru lumină, aer și spațiu suplimentar)
Camere: 4 (3 dormitoare + 1 living cu bucătărie open-space)
Băi: 2
Dressing generos
Predare în stadiu de semifinisat – Gata pentru personalizare:
Ușă metalică la intrare
Centrală termică proprie
Încălzire în pardoseală
Geamuri termopan cu tâmplărie PVC și 3 foi de sticlă
Pereți tencuiți și gletuiți
Instalații sanitare și electrice trase pe poziție
Șape nivelate mecanizat
Avantaje și localizare:
Bloc cu regim redus de înălțime – doar 3 etaje
Doar un apartament pe nivel – intimitate și confort sporit
Poziționat în zona de case din Mănăștur – liniște, intimitate, aer curat
Acces facil către toate punctele cheie ale orașului
Ideal pentru familii care doresc spațiu, calitate și liniște
Opțiuni suplimentare disponibile:
Parcare subterană: 15.000 € + TVA
Boxă de depozitare: 8.000 € + TVA
📝 Prețurile nu includ TVA

📞 Programează o vizionare și descoperă apartamentul perfect pentru tine și familia ta!
id extern: P2628
Caracteristici
  • ID:P2628
  • Nr. camere:4
  • Nr. dormitoare:3
  • S. utila:123.00 mp
  • S. terase:21.00 mp
  • Comp.:Semidecomandat
  • Confort:1
  • Etaj:Etaj 1
  • Nr. bucatarii:1
  • Nr. bai:2
  • Tip imobil:Bloc
  • Regim inaltime:P+3
Specificatii
Curent
Apa
Canalizare
Gaz
Centrala proprie
Incalzire pardoseala
Localizare
Larisa Transilvania-Imobiliare
Broker
Esti interesat de aceasta proprietate ?
Proprietati similare
0% comision Imagine 16661
Apartament 3 camere, 72mp, Park Lake - Iulius Mall
Cluj-Napoca, Gheorgheni 310.000€
3 camere 2 bai 72mp
0% comision Imagine 16488
Apartament 2 camere - 72mp - parcare subterana - zona Sopor - Iulius Mall
Cluj-Napoca, Gheorgheni 275.000€ 285.000€
2 camere 1 baie 72mp
0% comision Imagine 15768
Apartament 3 camere 63mp + 12mp terasa + parcare - zona Dorobantilor
Cluj-Napoca, Marasti 259.000€
3 camere 1 baie 63mp
0% comision Imagine 15675
Apartament LUX 2 camere, 53mp - curatenie inclusa - Park Lake
Cluj-Napoca, Gheorgheni 299.000€
2 camere 1 baie 53mp
0% comision Imagine 15632
Apartament ultrafinisat, în vilă exclusivistă cu piscina, 78 mp - Gruia
Cluj-Napoca, Gruia 310.000€ 315.000€
3 camere 2 bai 78mp
0% comision Imagine 14407
Apartament 3 camere, 77mp, terasă 26 mp, Grand Park Residence
Cluj-Napoca, Gheorgheni 320.000€
3 camere 2 bai 77.37mp