Imagine 53

Apartament 76,52 Mp, 3 min de Parcul central, Zona Eremia Grigorescu

ID: P1973 Cluj-Napoca, Grigorescu 107
227.999€
Camere
2
Suprafata utila
76.52 mp
Etaj
Parter
Bai
1
Descriere
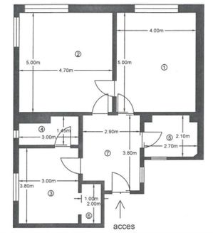
Vă oferim spre vânzare un apartament cu suprafața utilă de 76.52 mp, situat la parterul unei clădiri P+1, cu doar 4 apartamente. Locația este una excelentă – în apropierea Parcului Central și la doar 8 minute de mers pe jos până în centrul orașului.
Compartimentare:
2 camere inalte (3.2 m) si spațioase
1 baie
1 bucătărie
2 debarale
Stare actuală:
Apartamentul se predă gol, oferind posibilitatea de amenajare completă după propriul gust
Necesită renovare
Spații exterioare și confort:
Cota parte de aproximativ 100 mp din curtea comună (conform CF)
Posibilitate de parcare în curtea interioară, accesibilă doar locatarilor
Poziționare excelentă, pe o arteră principală, cu acces rapid către toate punctele de interes din oraș
Dotări existente:
Ferestre termoizolante PVC
Parchet laminat
Avantaje locație:
La 5 minute de mers pe jos până în Parcul Central
La 8 minute de centrul orașului
Aproape de restaurante, magazine, instituții publice și mijloace de transport
Ideal pentru locuință personală sau investiție (birouri, regim hotelier, închiriere), având o compartimentare eficientă și un potențial ridicat de valorizare prin renovare.

📞 Pentru detalii suplimentare și programarea unei vizionări, nu ezitați să mă contactați!
id extern: P1973













Caracteristici
  • ID:P1973
  • Nr. camere:2
  • Nr. dormitoare:2
  • S. utila:76.52 mp
  • Comp.:Decomandat
  • Confort:1
  • Etaj:Parter
  • Nr. bucatarii:1
  • Nr. bai:1
  • Structura:Caramida
  • Tip imobil:Bloc
  • Regim inaltime:P+1
Specificatii
Curent
Apa
Canalizare
Gaz
Soba teracota
Izolatie Exterior
Localizare
Larisa Transilvania-Imobiliare
Broker
Esti interesat de aceasta proprietate ?
Proprietati similare
Imagine 6292
TOP Exclusivitate
Apartament Nou, 60 Mp, cu 2 Terase și Parcare Subterană În Inima Orașului
Cluj-Napoca, Centru 259.980€ + TVA
3 camere 1 baie 60mp
Imagine 9699
0% comision
Apartament 2 camere ultrafinisat, smart home - Centru
Cluj-Napoca, Centru 217.000€
2 camere 1 baie 42mp
Imagine 9638
Apartament 3 camere, 68 mp, zona strazii Bucuresti
Cluj-Napoca, Marasti 229.000€
3 camere 2 bai 68mp
Imagine 9606
Apartament 2 camere, 54mp - zona Mărăști
Cluj-Napoca, Marasti 205.000€
2 camere 1 baie 54mp
Imagine 9581
Apartament 2 camere, 45mp - complex Intre Lacuri Residence
Cluj-Napoca, Gheorgheni 199.000€
2 camere 1 baie 45mp
Imagine 9553
Apartament 2 camere, 52mp – cartier Între Lacuri - Iulius Mall
Cluj-Napoca, Marasti 220.000€ 228.000€
2 camere 1 baie 52mp