Imagine 53

Teren de bloc ,1464mp PUD la HCL Manastur

ID: P2663 Cluj-Napoca, Manastur 110
999.000€
Suprafata teren
1464 mp
Front stradal
27 m
Descriere
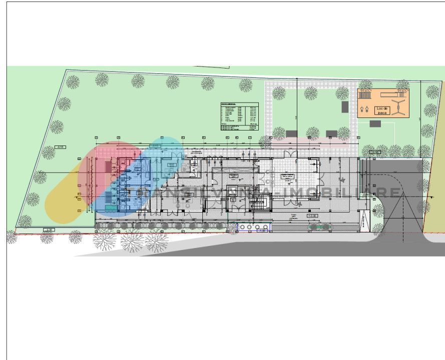
Vă oferim spre vânzare un teren intravilan de 1464 mp, situat în zona Străzii Câmpului - Mănăștur, o locație ideală pentru dezvoltări imobiliare.
Detalii teren:

Suprafață: 1464 mp
PUD -la HCL (Plan Urbanistic de Detaliu). februarie/Martie
Utilități: Toate utilitățile sunt disponibile la limita terenului.
Oportunități de construcție:
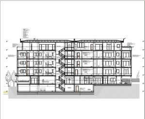
Posibilitatea de a construi un bloc cu 12 apartamente pe 3 niveluri+et retras având o suprafață utilă de 1100mpu.

Această proprietate reprezintă o oportunitate excelentă de investiție într-o zonă în expansiune.

Pentru mai multe informații și vizionare, nu ezitați să ne contactați!
ID extern: P2663
Caracteristici
  • ID:P2663
  • S. teren:1464.00 mp
  • Front stradal:27.00 m
  • Nr. fronturi:1
  • Clasificare teren:Intravilan
  • Regim inaltime:S+D+P+3+M
Specificatii
Curent
Apa
Canalizare
Gaz
Localizare
Eduard Transilvania-Imobiliare
Manager
Esti interesat de aceasta proprietate ?
Proprietati similare
0% comision Rep. exclusiva Imagine 18651
Teren intravilan 17Ha Valea Seaca
Cluj-Napoca, Dambul-Rotund 850.000€
17000mp
Imagine 11712
Teren 8.300 mp pe limita intravilanului, zona Dambul Rotund
Cluj-Napoca, Dambul-Rotund 899.000€ 1.199.900€
8300mp
Exclusivitate Imagine 3831
Teren intravilan 9550 mp
Cluj-Napoca, Iris 850.000€
9550mp