Imagine 53

Teren intravilan cu autorizație de construire – Str. Ștefan Pascu, zona Oașului

ID: P984 Cluj-Napoca, Iris 73
139.900€
Suprafata teren
302 mp
Front stradal
13 m
Descriere
O oportunitate excelentă pentru cei care doresc să construiască o locuință într-o zonă liniștită și bine conectată a orașului Cluj-Napoca. Terenul este situat pe strada Ștefan Pascu, la doar 50 de metri de strada Oașului, oferind acces facil către centrul orașului și alte puncte de interes.
Suprafață teren: 302 mp
Front stradal: 13 ml
Intravilan
Autorizație de construire emisă în noiembrie 2024
Acces prin drum privat asfaltat
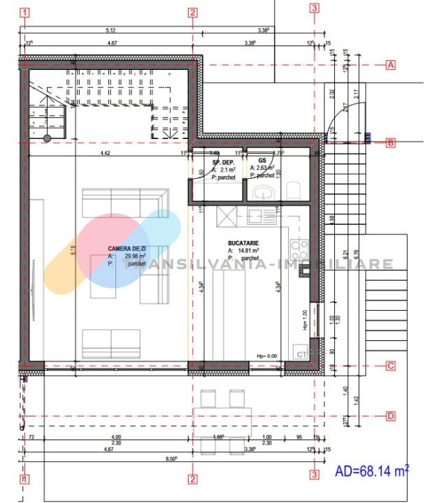
Proiectul autorizat prevede construirea unei locuințe unifamiliale de tip cuplat, cu regim de înălțime S+P+E, având o suprafață utilă de 152 mp. Compartimentarea include:
3 dormitoare
3 băi
Living spațios
Bucătărie
Spații de depozitare

Pentru mai multe detalii sau pentru a programa o vizionare, vă rugăm să ne contactați.
id extern: P984
Caracteristici
  • ID:P984
  • S. teren:302.00 mp
  • Front stradal:13.00 m
  • Clasificare teren:Intravilan
Specificatii
Curent
Apa
Canalizare
Localizare
Ana Transilvania-Imobiliare
Broker
Esti interesat de aceasta proprietate ?
Proprietati similare
Imagine 6595
Teren intravilan, 800 mp, priveliste deosebita asupra orasului, Iris
Cluj-Napoca, Iris 120.000€
800mp
Imagine 5371
0% comision Rep. exclusiva
Teren intravilan 1000 mp, zona Giuseppe Verdi
Cluj-Napoca, Iris 129.900€
1000mp
Imagine 3136
0% comision Exclusivitate
Teren extravilan 1100 mp, view deosebit, zona Lomb(Perlei)
Cluj-Napoca, Dambul-Rotund 150.000€
1000mp
Imagine 1474
Parcele Teren Intravilan 800mp | PUZ Aprobat | Construibil din 2026
Cluj-Napoca, Sopor 160.000€
800mp
Imagine 3117
0% comision
Teren construibil 1.000 mp de vânzare – La intrare în Chinteni
Chinteni 129.990€
1000mp
Imagine 1748
0% comision
Teren 4000 mp în Tureni
Tureni 140.000€
4000mp