Imagine 53

Teren Duplex/Casa individuala cu autorizatie, in Popesti

ID: P780 Popesti, Central 75
183,10€ + TVA/mp
Suprafata teren
355 mp
Front stradal
20 m
Descriere
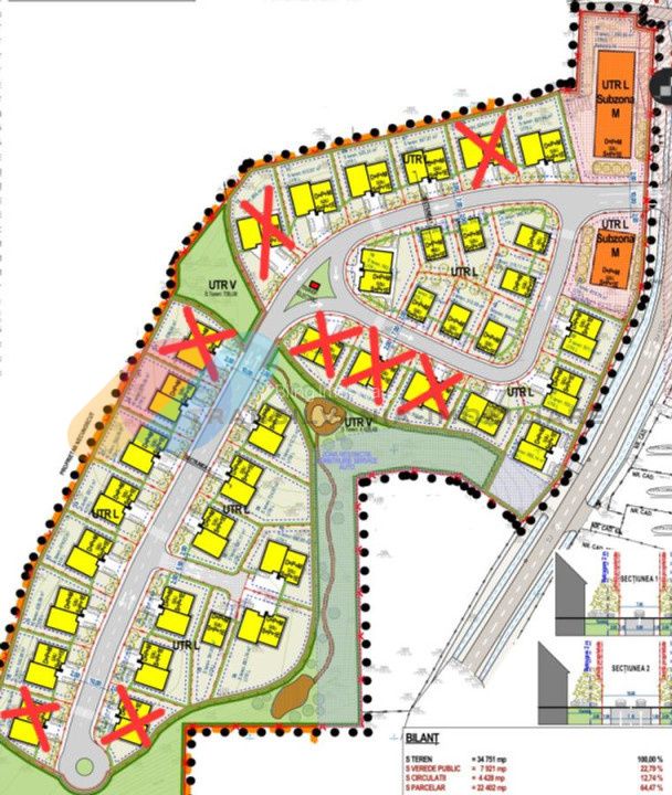
Vă propunem spre vânzare terenuri destinate construcției de unități duplex și case individuale, situate la intrarea în Popești, într-un viitor ansamblu rezidențial.
Detalii teren:
Suprafață totală: 34.700 mp
PUZ aprobat și parcelare realizată
Parcelele disponibile:
De la 281 mp utili pentru case individuale
Minimum 500 mp pentru duplexuri
Ansamblul rezidențial va cuprinde:
68 de unități locative, dintre care:
60 de duplexuri
8 case individuale
Avantaje:
Asistență pentru autorizarea parcelelor
Zonă în plină dezvoltare, cu potențial ridicat de investiție
Acces facil și infrastructură în curs de amenajare

Pentru detalii suplimentare și vizionări, vă stăm la dispoziție!
Id extern: P780
Caracteristici
  • ID:P780
  • S. teren:355.00 mp
  • Front stradal:20.00 m
  • Clasificare teren:Intravilan
  • Regim inaltime:D+P+1
Specificatii
Curent
Apa
Canalizare
Gaz
Localizare
Eduard Transilvania-Imobiliare
Manager
Esti interesat de aceasta proprietate ?
Proprietati similare
Imagine 8690
Exclusivitate
Terenuri cu autorizatie de Duplex, in Chinteni
Chinteni 60.000€
500mp
Imagine 7411
Exclusivitate
Teren Intravilan 503mp Frunzisului
Cluj-Napoca, Zorilor 55.990€
503mp
Imagine 7250
Teren de 700 mp cu PUZ aprobat – Chinteni
Chinteni, Central 56.000€
700mp
Imagine 8850
Rep. exclusiva
Teren 1000 mp Iris, front 50 ml, cu utilități
Cluj-Napoca, Iris 64.990€
967mp
Imagine 7616
Exclusivitate
Teren 570mp de casa individuala, in Chinteni
Chinteni, Central 59.990€ 61.000€
570mp
Imagine 9144
0% comision
Teren intravilan 500mp
Chinteni 60.000€
500mp