Imagine 53

Teren Duplex/Casa individuala cu autorizatie, in Popesti

ID: P1332 Popesti, Central 114
89.990€ + TVA
Suprafata teren
550 mp
Front stradal
20 m
Descriere
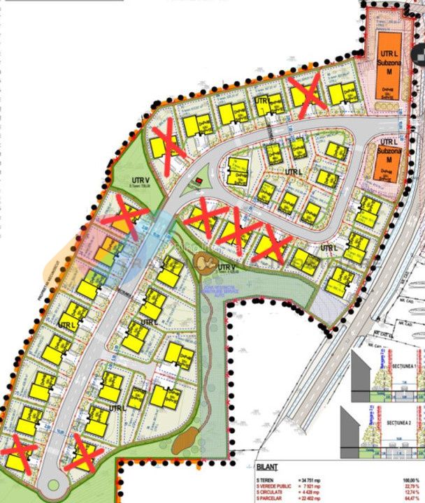
Vă propunem spre vânzare terenuri destinate construcției de unități duplex și case individuale, situate la intrarea în Popești, într-un viitor ansamblu rezidențial.
Detalii teren:
Suprafață totală: 34.700 mp
PUZ aprobat și parcelare realizată
Parcelele disponibile:
De la 350 mp utili pentru case individuale
Minimum 550 mp pentru duplexuri
Ansamblul rezidențial va cuprinde:
68 de unități locative, dintre care:
60 de duplexuri
8 case individuale
Avantaje:
Asistență pentru autorizarea parcelelor
Zonă în plină dezvoltare, cu potențial ridicat de investiție
Acces facil și infrastructură în curs de amenajare

Pentru detalii suplimentare și vizionări, vă stăm la dispoziție!
Id extern: P806
Caracteristici
  • ID:P1332
  • S. teren:550.00 mp
  • Front stradal:20.00 m
  • Clasificare teren:Intravilan
  • Regim inaltime:D+P+1
Specificatii
Curent
Apa
Canalizare
Gaz
Localizare
Eduard Transilvania-Imobiliare
Manager
Esti interesat de aceasta proprietate ?
Proprietati similare
Imagine 11795
Teren intravilan 831mp în Borhanci
Cluj-Napoca, Borhanci 99.900€
831mp
Imagine 11719
Exclusivitate
Teren 900 Mp, zona Dambul Rotund - Colonia Breaza
Cluj-Napoca, Dambul-Rotund 89.000€
900mp
Imagine 11323
Teren intravilan 647 mp de vânzare în Borhanci – zonă de urbanizare, PUZ în curs
Cluj-Napoca, Borhanci 84.990€ 89.000€
647mp
Imagine 10841
0% comision Rep. exclusiva
Teren intavilan construibil 4000mp în Tureni
Tureni, Central 79.990€
2000mp
Imagine 9746
Exclusivitate
Teren 600 mp de vânzare Chinteni cu Puz si utilitati
Chinteni 78.000€
600mp
Imagine 9691
Teren intravilan 1000 mp, zona centrala Chinteni
Chinteni 89.999€
1000mp