Vă propunem spre vânzare un spațiu comercial cu vizibilitate excelentă, situat la parter, într-o zonă centrală din Cluj-Napoca. Proprietatea oferă venituri pasive sigure prin contract de închiriere pe termen lung cu o companie de renume.
Detalii proprietate:
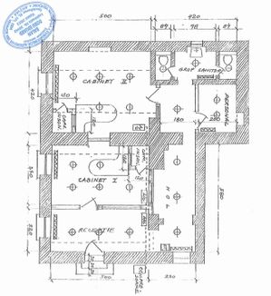
• Suprafață utilă: 82 mp parter + 22 mp subsol (acces separat din curtea interioară)
• Intrare directă din stradă și front stradal cu expunere ridicată
• Cota parte teren: 120 mp din total 1.094 mp (indiviză)
• Loc de parcare în curtea interioară, cesionat de la Primărie
Contract de chirie:
• Randament aproximativ 5% (detalii în privat)
• Contract obligatoriu de preluat de către viitorul proprietar
• Valabilitate până în 2034, cu majorare a chiriei din 2029
• Posibilitate de reziliere de către proprietar cel mai devreme din 2029, cu preaviz
• Cheltuielile de întreținere sunt suportate de chiriaș
Toate actele sunt în regulă.
Pentru mai multe informatii si programarea unei vizionari, va rugam sa ne contactati!
Id extern: P2319

Spațiu comercial cu vizibilitate excelentă, 82 Mp, zona Primarie Cluj
ID: P2319 Cluj-Napoca, Centru
7
304.000€
Camere
3
Suprafata utila
82 mp
Parcari
1
Descriere
Caracteristici
- ID:P2319
- Nr. camere:3
- S. utila:82.00 mp
- Comp.:Compartimentat
- Nr. bai:1
- Nr. parcari:1
- Structura rezistenta:Caramida
- Tip imobil:Bloc
- Regim inaltime:P+1
Specificatii
Curent
Apa
Canalizare
Gaz
Centrala proprie
Localizare
Esti interesat de aceasta proprietate ?