Vă propunem spre vânzare o unitate locativă tip duplex, situată într-o zonă rezidențială liniștită din Someșeni. Imobilul beneficiază de stație de autobuz în fața casei, acces rapid spre cartierul Mărăști, Iulius Mall și zona centrală, fiind ideal pentru familii sau cupluri active.
Detalii generale:
Suprafață teren/unitate: 250 mp
Suprafață utilă totală: 170 mp (inclusiv terasă și balcon)
Suprafață utilă interioară: 135 mp
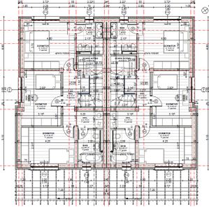
Compartimentare pe nivele:
Parter:
Living spațios
Bucătărie open-space
Grup sanitar
Spațiu de depozitare
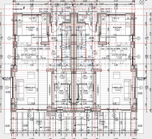
Etaj:
3 dormitoare luminoase
2 băi moderne
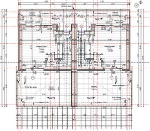
Etaj retras:
Cameră hobby / birou
Terasă panoramică cu vedere spectaculoasă
Balcon
Caracteristici și facilități:
Izolație exterioară: 15+ cm
Ferestre mari, cu geam tripan, calitate superioară – lumină naturală abundentă
Încălzire în pardoseală + centrală termică pe gaz
Infrastructură pregătită pentru:
Pregătit infrastructura panouri fotovoltaice + incarcare mașini electrice parcare
Certificat energetic NZEB (clădire cu consum aproape zero)
Racorduri: gaz, apă, canalizare, curent trifazic
Loc de parcare inclus
Predare:
Se vinde la stadiul de semifinisat
Termen estimat de finalizare: mijlocul anului 2025
📞 Pentru mai multe detalii sau pentru programarea unei vizionări, nu ezitați să mă contactați.
id extern: P2325

Duplex modern de vânzare în Someșeni – cu terasă panoramică și acces rapid
ID: P2325 Cluj-Napoca, Someseni
11
369.999€
Camere
5
Suprafata utila
135 mp
Bai
3
An constructie
2024
Descriere
Caracteristici
- ID:P2325
- Nr. camere:5
- Nr. dormitoare:3
- S. utila:135.00 mp
- S. construita:170.00 mp
- S. teren:250.00 mp
- Nr. bucatarii:1
- Nr. bai:3
- An constructie:2024
- Structura rezistenta:Caramida
- Regim inaltime:P+1
Specificatii
Curent
Apa
Canalizare
Gaz
Centrala proprie
Incalzire pardoseala
Localizare
Esti interesat de aceasta proprietate ?
Proprietati similare