Imagine 53

Casă cuplată modernă, 160 mp utili, semifinisată, curte amenajată

ID: P2600 Cluj-Napoca, Iris 12
330.000€
Camere
5
Suprafata utila
160 mp
Bai
3
An constructie
2024
Descriere
Vă propunem spre vânzare o casă cuplată elegantă, cu o suprafață utilă de 160 mp, structurată pe trei niveluri – demisol, parter și mansardă. Locuința se predă la stadiul de semifinisat, cu doua spații de parcare incluse și curte amenajată. Este ideală pentru o familie care caută un cămin confortabil, într-o zonă liniștită și accesibilă.
Detalii generale:
Suprafață utilă totală: 160 mp
Regim: Demisol + Parter + Mansardă
Curte amenajată + loc de parcare inclus
Predare: Semifinisat interior, finisat exterior
Demisol – 32.83 mp
Spațiu tehnic
Spațiu de depozitare
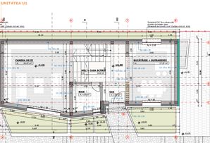
Parter – 63.50 mp
Cameră de zi – 24.57 mp
Bucătărie + dining – 17.07 mp
Baie – 4.69 mp
Hol + casa scării – 8.40 mp
Sas – 2.95 mp
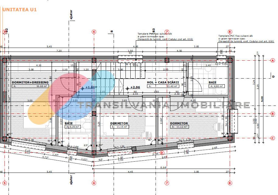
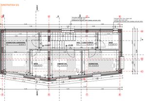
Mansardă – 63.50 mp
Dormitor 1 – 11.12 mp
Dormitor 2 – 11.15 mp
Dormitor matrimonial + dressing – 16.68 mp
Baie principală – 4.80 mp
Baie secundară – 6.35 mp
Hol + casa scării – 13.40 mp
Predare la stadiul de semifinisat:
Pereți tencuiți + glet
Instalații electrice și sanitare la poziție
Încălzire în pardoseală
Tâmplărie termopan
Fațadă finalizată
Exterior:
Curte amenajată
Loc de parcare în curte
Localizare:
Zonă liniștită, cu acces facil spre oraș
În apropiere: școli, grădinițe, magazine, stații de transport

📞 Pentru mai multe detalii, planuri sau pentru a programa o vizionare, nu ezitați să ne contactați.
id extern: P2600
Caracteristici
  • ID:P2600
  • Nr. camere:5
  • Nr. dormitoare:3
  • S. utila:160.00 mp
  • S. teren:100.00 mp
  • Nr. bucatarii:1
  • Nr. bai:3
  • An constructie:2024
  • Structura rezistenta:Caramida
  • Regim inaltime:D+P+M
Specificatii
Curent
Apa
Canalizare
Gaz
Incalzire pardoseala
Localizare
Larisa Transilvania-Imobiliare
Broker
Esti interesat de aceasta proprietate ?
Proprietati similare
Imagine 11318
Duplex de vânzare – 186 mp utili | 3 niveluri | zona Auchan Iris
Cluj-Napoca, Iris 359.900€
5 camere 2 bai 189mp
Imagine 10832
Unitate Duplex, 120 Mp, acces asfaltat, toate utilitățile, zona Oasului
Cluj-Napoca, Iris 325.000€
4 camere 3 bai 135mp
Imagine 10696
Duplex modern de vânzare în Someșeni – cu terasă panoramică și acces rapid
Cluj-Napoca, Someseni 359.999€ 369.999€
5 camere 3 bai 135mp
Imagine 10061
Duplex modern pe 3 niveluri cu terasă și parcare, cartierul Zorilor
Cluj-Napoca, Zorilor 369.000€ 389.000€
5 camere 3 bai 134mp
Imagine 9865
Teren 729 mp cu casă individuală – cartier Bulgaria, zonă liniștită
Cluj-Napoca, Bulgaria 349.999€
3 camere 1 baie 729mp
Imagine 10747
0% comision Rep. exclusiva
Unitate duplex 170mp cu garaj in Voronet
Cluj-Napoca, Iris 339.990€
4 camere 3 bai 170mp