Imagine 53

Casa individuala 120mp , teren 405mp-Dezmir

ID: P3605 Dezmir 1
379.000€
Camere
4
Suprafata utila
120 mp
Bai
3
Descriere
Vă propunem spre vânzare o casă individuală situată în Dezmir, într-o zonă liniștită și aerisită, ideală pentru cei care își doresc confort, intimitate și acces rapid către Cluj-Napoca.
Proprietatea are o suprafață utilă de 120 mp și este amplasată pe un teren de 405 mp, oferind spațiu suficient pentru curte amenajată, grădină sau zonă de relaxare.
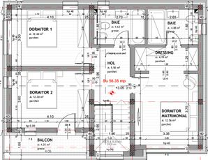
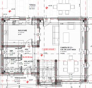
Casa este bine compartimentată și luminoasă, fiind dispusă pe două niveluri:
Parter: living generos cu zonă de relaxare, bucătărie, baie, hol și spații de depozitare.
Etaj: 3 dormitoare luminoase, baie, hol și posibilitate de amenajare dressing.
Compartimentarea este gândită pentru confortul unei familii, oferind separarea optimă între zona de zi și cea de noapte.
Locuința se remarcă prin spații echilibrate, funcționalitate și intimitate, fiind alegerea ideală pentru cei care vor să se bucure de avantajele unei case, fără a renunța la proximitatea orașului.
Localizare excelentă în Dezmir, cu acces rapid către Cluj-Napoca, aproape de puncte de interes, transport și facilități.
Ideală atât pentru locuință proprie, cât și pentru investiție.
Pentru mai multe informatii si programarea unei vizionari, va rugam sa ne contactati!
Id extern: P3605
Caracteristici
  • ID:P3605
  • Nr. camere:4
  • Nr. dormitoare:3
  • S. utila:120.00 mp
  • S. terase:24.00 mp
  • S. teren:405.00 mp
  • Nr. bucatarii:1
  • Nr. bai:3
  • Nr. balcoane:1
  • Nr. parcari:1
  • Structura rezistenta:Caramida
  • Regim inaltime:P+1
Specificatii
Curent
Apa
Canalizare
Gaz
Centrala proprie
Localizare
Alex Transilvania-Imobiliare
Broker
Esti interesat de aceasta proprietate ?
Proprietati similare
0% comision Imagine 19101
CASA INDIVIDUALA I Duplex Iris
Cluj-Napoca, Iris 350.000€
4 camere 3 bai 210mp
0% comision Imagine 18865
Casă modernă, 5 camere, teren 400mp–Dezmir
Dezmir 360.000€
5 camere 4 bai 170mp
0% comision Imagine 18617
Duplex cu panoramă | 240mp utili, 2 parcari, Dâmbul Rotund
Cluj-Napoca, Dambul-Rotund 379.990€
6 camere 3 bai 240mp
Imagine 18896
Duplex modern de vânzare în Someșeni – cu terasă panoramică și acces rapid
Cluj-Napoca, Someseni 339.999€ 349.999€
5 camere 3 bai 135mp
Imagine 18477
Teren 729 mp cu casă individuală – cartier Bulgaria, zonă liniștită
Cluj-Napoca, Bulgaria 349.999€
3 camere 1 baie 729mp
0% comision Imagine 18446
Duplex 162 mp + rooftop 72 mp, curte 180 mp, cartier Voronet
Cluj-Napoca, Iris 335.000€ 345.000€
4 camere 3 bai 142mp