Imagine 53

Casă pe un singur nivel + pod amenajabil, 170 mp utili, Chinteni

ID: P2953 Chinteni 26
236.900€ 237.000€
Camere
4
Suprafata utila
170 mp
Bai
2
Descriere
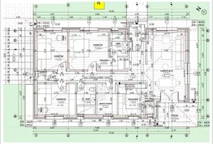
Va propunem spre vanzare o casă unifamilială aflată la stadiul de construcție la roșu, situată la intrare în Chinteni, într-o zonă liniștită și în plină dezvoltare. Locuința are o suprafață utilă de 105 mp, la care se adaugă o terasă de 10 mp și un pod amenajabil de 65 mp, cu înălțime utilă de 2.65 m. Suprafață totală utilă potențială: 170 mp.
Compartimentare: 1 dormitor matrimonial cu dressing și baie proprie (20 mp), 2 dormitoare (11.25 mp și 11.45 mp), living cu dining (25 mp), bucătărie cu cămară (9.15 mp), baie comună (5.8 mp), spațiu tehnic (6.10 mp), debara (2 mp), terasă (10 mp). Include pergolă acoperită pentru parcare și încă două locuri în curte.
Terenul are 500 mp, cu o curte liberă de aproximativ 300 mp și grădină amenajabilă cu sistem de irigație.
Dotări: construcție din cărămidă Cemacon, izolație EPS100 de 15 cm, tâmplărie VEKA cu geam tripan, încălzire prin pardoseală, acoperiș din țiglă ceramică, priză pentru mașină electrică, pod pregătit pentru amenajare. Casă conform standardelor nZEB.
Opțional, se pot adăuga panouri fotovoltaice și pompă de căldură (+25.000 euro).
Se predă la stadiul de semifinisat la interior, cu exterior complet finisat (tencuială decorativă, piatră naturală, curte amenajată, împrejmuire). Racord complet la toate utilitățile: gaz, apă-canal, curent electric.
Termen de finalizare estimat: Martie 2026.

Pentru mai multe informatii si programarea unei vizionari, va rugam sa ne contactati!
id extern: P2953
Caracteristici
  • ID:P2953
  • Nr. camere:4
  • Nr. dormitoare:3
  • S. utila:170.00 mp
  • S. terase:10.00 mp
  • S. teren:500.00 mp
  • Nr. bucatarii:1
  • Nr. bai:2
  • Nr. parcari:2
  • Structura rezistenta:Caramida
Specificatii
Curent
Apa
Canalizare
Izolatie Exterior
Localizare
Larisa Transilvania-Imobiliare
Broker
Esti interesat de aceasta proprietate ?
Proprietati similare
TOP Rep. exclusiva Imagine 6139
Case Premium cu View Panoramic | Standard NZEB | Acces Facil
Chinteni 209.990€
4 camere 3 bai 120mp
Imagine 14686
Casa 3 camere, complet utilata - Chinteni
Chinteni 210.000€
3 camere 2 bai 85mp
0% comision Imagine 14603
Casa unifamiliala 120mpu cu garaj la intrare in Chinteni
Chinteni, Central 258.990€ 265.000€
4 camere 3 bai 140mp
Imagine 14501
Casa de vanzare 128mp + 514mp teren - Chinteni
Chinteni 220.000€ + TVA
4 camere 3 bai 128mp
Imagine 14468
Casa individuala 120mp + 500mp teren - Chinteni
Chinteni 215.000€
4 camere 2 bai 120mp
Imagine 14364
Casa individuala, 625 Mp Teren, zona Someseni
Cluj-Napoca, Someseni 257.000€
2 camere 1 baie 60mp