Imagine 53

Unitate Duplex 120 mp, Complex rezidențial Chinteni

ID: P3374 Chinteni, Central 36
155.990€ + TVA 180.000€ + TVA
Camere
4
Suprafata utila
120 mp
Bai
2
An constructie
2024
Descriere
Vă prezentăm spre vânzare un duplex in Complexul g Rezidențial din Chinteni!
Descriere complex:
Situat la marginea pădurii, într-o zonă liniștită și curată
Comunitate prietenoasă, ideală pentru o viață plină de bucurii
Acces facil pe străzi asfaltate și iluminate
Facilități și caracteristici:
Locuințe proiectate pentru maximul de confort și funcționalitate
Spații luminoase și atent finisate, cu accent pe detalii
Terasă spațioasă pentru momente de relaxare
Dormitoare generoase și băi moderne pentru un plus de confort
Balcon ideal pentru a vă bucura de aer curat
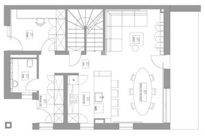
Dimensiuni unități locative:
Hol acces: 3,52 mp
Baie: 3,54 mp
Hol intrare: 6,60 mp
Birou: 9,16 mp
Depozitare: 1,18 mp
Bucătărie: 7,30 mp
Hol: 3,13 mp
Living: 16,77 mp
Terasă: 13,39 mp
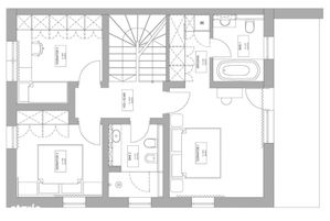
Dormitoare: 10,77 mp și 10,62 mp
Baie: 5,66 mp
Hol și casa scării: 10,17 mp
Dormitor matrimonial: 16,04 mp
Baie: 4,96 mp
Dressing: 4,10 mp
Balcon: 12,14 mp
Descoperiți o viață de calitate și liniște în mijlocul naturii, la Complexul Rezidențial din Chinteni!

Pentru mai multe informații și pentru programarea unei vizionări, vă rugăm să ne contactați!
ID extern: P3374






Caracteristici
  • ID:P3374
  • Nr. camere:4
  • Nr. dormitoare:3
  • S. utila:120.00 mp
  • S. terase:10.00 mp
  • S. teren:210.00 mp
  • Nr. bucatarii:1
  • Nr. bai:2
  • Nr. balcoane:1
  • Nr. parcari:2
  • An constructie:2024
  • Structura rezistenta:Caramida
  • Regim inaltime:D+P+1
  • Orientare:Sud-Est
  • Clasa energetica:A
Specificatii
Curent
Apa
Canalizare
Gaz
Incalzire pardoseala
Ferestre PVC
Localizare
Eduard Transilvania-Imobiliare
Manager
Esti interesat de aceasta proprietate ?
Proprietati similare
TOP 0% comision Imagine 19505
Casă modernă P+E | 120 mp utili | 360 mp teren | Panouri fotovoltaice |
Chinteni 175.000€ + TVA
4 camere 3 bai 120mp
0% comision Imagine 19267
Casă tip duplex cu teren generos, 120 mp utili, Căianu Mic-Cluj Napoca
Caianu Mic 150.000€
4 camere 1 baie 120mp
0% comision Casă 3 camere, 90 mp utili-Apahida
Casă 3 camere, 90 mp utili-Apahida
Apahida 175.000€
3 camere 2 bai 90mp
0% comision Imagine 17007
Casă, 1553 mp teren, zona linistita, sat Cara
Apahida 179.000€
6 camere 3 bai 135mp
Imagine 15527
Casa tip Duplex 120mp Chinteni
Chinteni 139.990€ + TVA 143.990€ + TVA
4 camere 2 bai 120mp
0% comision Imagine 8934
Casă unifamilială 127 mpu, teren 665 mp– Chinteni
Chinteni, Central 149.990€
4 camere 3 bai 127mp