Imagine 53

Apartament 35 mp, mobilat, utilat, parcare inclusa-Apahida

ID: P3491 Apahida 8
70.000€
Camere
1
Suprafata utila
38.50 mp
Etaj
Etaj 1
Bai
1
Parcari
1
An constructie
2024
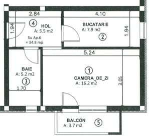
Descriere
Vă propunem spre vânzare un apartament cochet, cu suprafață utilă de 35 mp, situat în localitatea Apahida, într-un cadru rezidențial liniștit, cu acces facil către principalele puncte de interes ale zonei.
Proprietatea se remarcă printr-o organizare eficientă a spațiului, camere bine proporționate și lumină naturală, fiind o alegere potrivită atât pentru locuire personală, cât și pentru investiție.
Detalii proprietate:
Suprafață utilă: 35 mp.
Compartimentare practică.
Dormitor, cu acces către balcon.
Bucătărie separată.
Baie.
Hol de acces.
Beneficii:
Se vinde complet mobilat și utilat, gata pentru mutare sau închiriere.
Loc de parcare inclus în preț.
Zonă liniștită, cu acces rapid către oraș.
Ideal pentru rezidență sau investiție. O proprietate echilibrată, care oferă confort, funcționalitate și siguranța unei investiții într-o zonă în continuă dezvoltare.

Pentru mai multe informatii si programarea unei vizionari, va rugam sa ne contactati!
Id extern: P3491
Caracteristici
  • ID:P3491
  • Nr. camere:1
  • Nr. dormitoare:1
  • S. utila:38.50 mp
  • S. balcoane:4.00 mp
  • Comp.:Decomandat
  • Etaj:Etaj 1
  • Nr. bucatarii:1
  • Nr. bai:1
  • Nr. balcoane:1
  • Nr. parcari:1
  • An constructie:2024
  • Structura:Caramida
  • Tip imobil:Bloc
  • Regim inaltime:P+2
Specificatii
Curent
Apa
Canalizare
Gaz
Centrala proprie
Localizare
Alex Transilvania-Imobiliare
Broker
Esti interesat de aceasta proprietate ?
Proprietati similare
0% comision Imagine 18250
Apartament 36mp, finisat, parcare inclusa-Apahida
Apahida 65.000€
1 camera 1 baie 36mp
0% comision Imagine 17093
Garsonieră mobilata complet 33mp, parcare inclusa-Apahida
Apahida 79.900€
1 camera 1 baie 33mp
0% comision Imagine 17044
Apartament 2 camere 48mp - Edgar Quinet
Cluj-Napoca, Manastur 79.990€ 85.000€
2 camere 1 baie 48mp
0% comision Imagine 17019
Apartament 1 cameră, semi-mobilat, cu parcare și balcon în Apahida
Apahida 75.000€
2 camere 1 baie 36.40mp
Imagine 15795
Ap 36mp Apahida
Apahida 65.000€
1 camera 1 baie 36mp
Imagine 15175
Apartament 1 camera, 32 mp, etaj 1, zona Eroilor
Floresti 65.000€
1 camera 1 baie 32mp