Imagine 53

Spațiu de Închiriat, 110 Mp, vitrina la strada, zona Piata Cipariu

ID: P2440 Cluj-Napoca, Centru 68
3.500€
Camere
4
Suprafata utila
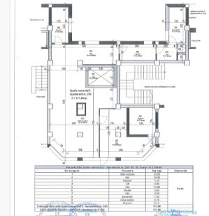
110 mp
Descriere
Vă propunem spre închiriere un spațiu comercial premium, situat într-una dintre cele mai circulate și căutate zone din Cluj-Napoca – Piața Cipariu. Spațiul a funcționat timp de peste 10 ani ca servicii, ceea ce îi conferă un vad comercial excelent și vizibilitate ridicată.
Caracteristici principale:
Suprafață utilă: 110 mp
Chirie: 3.500 €/lună
Contract: minim 5 ani
Proprietar: persoană fizică
Spațiul este potrivit pentru: bancă, financiar, medical, asigurări, showroom, birouri, retail, IT, servicii etc.
📍 Avantaje:
Locație ultracentrală cu trafic pietonal și auto intens
Fațadă cu vizibilitate excelentă
Pregătit pentru activități comerciale de profil premium
Acces facil la mijloace de transport și parcări publice

id extern: P2440
Caracteristici
  • ID:P2440
  • Nr. camere:4
  • S. utila:110.00 mp
  • Comp.:Compartimentat
  • Nr. bai:1
  • Structura rezistenta:Caramida
  • Tip imobil:Bloc
  • Regim inaltime:P+8
Specificatii
Curent
Apa
Canalizare
Gaz
Centrala proprie
Localizare
Larisa Transilvania-Imobiliare
Broker
Esti interesat de aceasta proprietate ?