Imagine 53

Spațiu 101 mp, vitrină stradală, parcare inclusă, zona Traian

ID: P3657 Cluj-Napoca, Semicentral 1
999€
Camere
3
Suprafata utila
101 mp
Parcari
1
Descriere
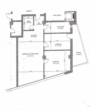
Vă propunem spre închiriere doua spații moderne, ideale atât pentru birou, cât și pentru alte activități, cu o suprafață utilă de 101 mp, necompartimentat (open space) sau compartimentate.
Spațiul este compus dintr-un open space generos, oficiu (bucătărie) și baie, oferind flexibilitate în amenajare, în funcție de nevoile chiriașului. Se predă complet finisat, conform cerințelor clientului.
Beneficiază de dotări moderne: centrală termică individuală, contorizare separată, interfon, ascensor, precum și un front stradal complet vitrat (perete cortină din sticlă), care asigură lumină naturală din abundență și vizibilitate excelentă.
În preț este inclus un loc de parcare în curtea interioară securizată, cu acces controlat prin barieră și supraveghere video.

Pentru mai multe informatii si programarea unei vizionari, va rugam sa ne contactati!
Id extern: P3657
Caracteristici
  • ID:P3657
  • Nr. camere:3
  • S. utila:101.00 mp
  • Comp.:Compartimentat
  • Nr. bai:1
  • Terase:1
  • Nr. parcari:1
  • Structura rezistenta:Caramida
  • Tip imobil:Bloc
  • Regim inaltime:P+5
Specificatii
Curent
Apa
Canalizare
Centrala proprie
Localizare
Larisa Transilvania-Imobiliare
Broker
Esti interesat de aceasta proprietate ?